Umbau einer Arztpraxis in Lingen: Hier durften wir die aus den 80ern stammenden Räumlichkeiten komplett umgestalten. Dabei wurden diverse Wände entfernt, andere neu gezogen und eine Loggia zum Sprechzimmer ausgebaut - und das im laufenden Betrieb! Vor allem aber konnten wir hier die komplette Innenarchitektur liefern. Oberflächen, Möbel, Beleuchtung, selbst die Beschriftungen und Piktogramme wurden durch uns entworfen.
Sanierung der Schwimmhalle in Dalum durch die Gemeinde Geeste.
Eine enorm schwierige Baustelle bei der so ziemlich alles zusammenkam, was einem beim Bauen im Bestand passieren kann. Brandschutzprobleme, unzureichende Trinkwasserhygiene und allen Voran eine erhebliche Schadstoffbelastung ließen im vergangenen Herbst Zeitplan und Budget in Rauch aufgehen. Damals günstig gebaut - heute riesige Entsorgungskosten. Das bestärkt uns in unserem Bestreben, bei unseren Projekten nachhaltige, recyclebare Materialien zu verwenden, damit unsere Bauten an Ihrem Lebensende keine Belastung darstellen.
Zum Glück haben wir motivierte, lokale Handwerksunternehmen, die uns hier nicht hängen lassen.
Nach der Sanierung zeigt sich das Bad von einer neuen Seite: Der ursprünglich reine Zweckbau bietet nun endlich etwas Platz für eine Liegefläche und auch für die Schwimmmeister und Gerätschaften gibt es bald feste Räume. Zusätzliche Aufenthaltsqualität generieren wir durch wohnliche, natürliche Materialien und stimmungsvolle Beleuchtung.
Entwurfsplanung für den Neubau eines Krematoriums in Berlin, Ludwigsfelde.
Welchen Einfluss kann Architektur Gemütslage des Menschen haben? Dies war eine zentrale Frage, welche uns im Entwurf beschäftigte. Wie kann man den Fokus von der Anreise, dem Stress und den Ablenkungen einer gleichzeitigen Welt verlagern auf die Abschiednahme von einem geliebten Angehörigen?
Unsere Antwort, welche wir als Unterstützer der Bau- und Projektplanung Exeler aus Lingen entwickeln durften, beinhaltet gewundene Wegeführungen vom Parkplatz zum Eingang, sehr reduzierte Ausblicke sowie warme, natürliche Materialien.
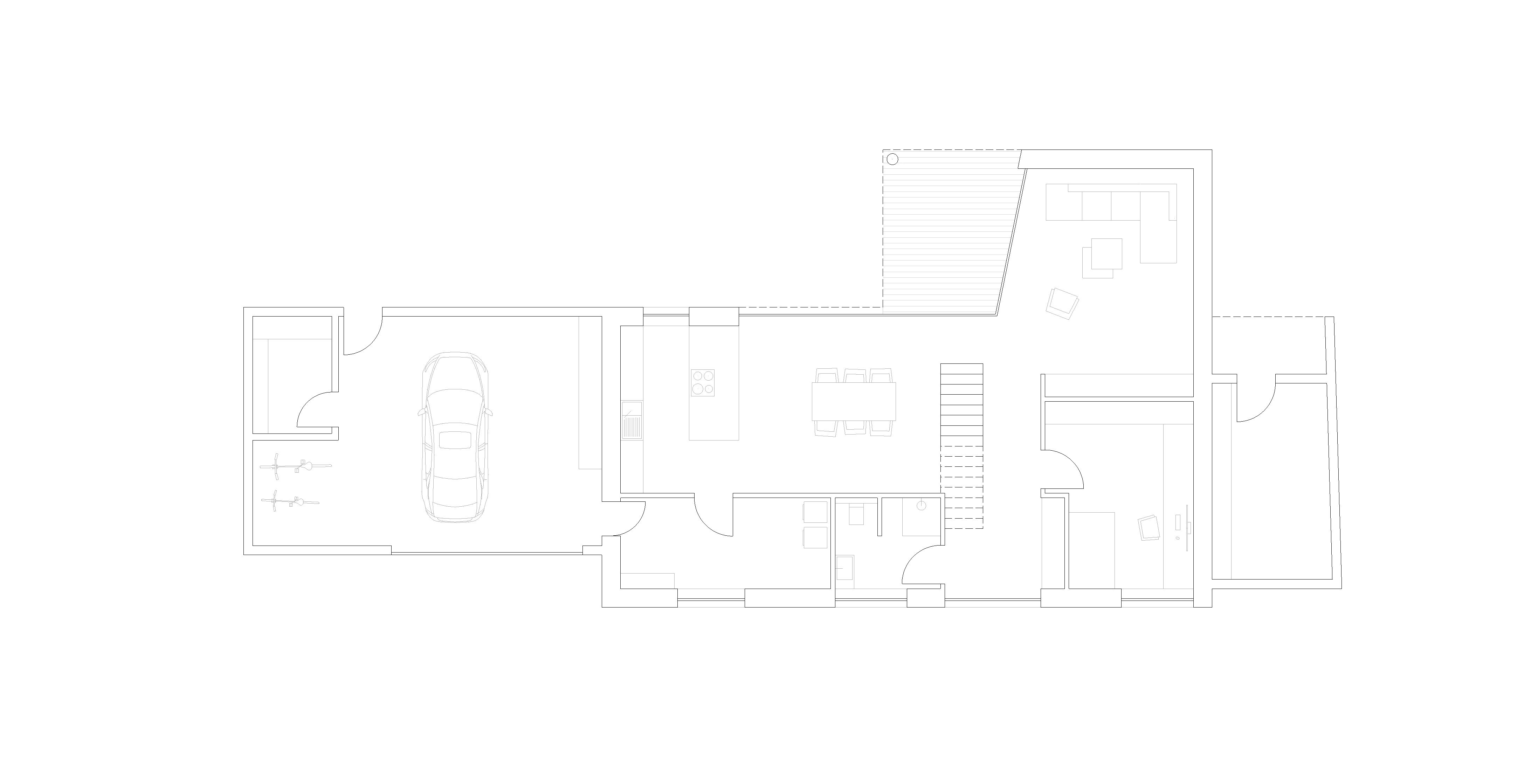
Sanierung und zweigeschossige Erweiterung eines Wohnhauses in Lingen.
Diesem Zweifamilienhaus aus den 1960er Jahren wurde neues Leben eingehaucht. Statt eines Komplettabbruchs haben sich die Bauherren für das Weiternutzen und Sanieren entschieden. Das schont nicht nur Ressourcen, sondern bewahrt auch die Seele dieses Elternhauses.
Wir entfernten diverse etwas verbastelte Anbauten aus den 1970er Jahren und erweiterten das Gebäude dann um einen modernen Anbau mit Flachdach und Dachterrasse, sodass zwei Wohneinheiten im KFW 70 EE Standard entstanden.
Am 8. Juni konnten wir gemeinsam mit der Direktorin der Kunsthalle Lingen und vielen Kunstinteressierten die Ausstellung der Künstlerin und Bildhauerin Julie Kopp in unseren Räumen eröffnen. Im Rahmen eines Interviews konnten wir dabei einiges über Inspiration, den Schaffungsprozess sowie die Bedeutung der Arbeiten erfahren. Es war, wie immer, ein wunderbarer Abend in entspannter Atmosphäre. Für Interessierte, die es bislang nicht geschafft haben, steht unsere Tür weiterhin offen: Die Ausstellung läuft voraussichtlich bis um 22.11.23
MSHK ist jetzt Unform Architekten! 2020 gründeten wir das Büro als MSK und benannten es 2021 durch die Aufnahme von Tobias Hoffmann in MSHK um. Seit Mitte 2022 haben das M und das K das Büro verlassen, weshalb längst ein neuer Name anstand. "Unform" begründet sich dabei in unserer Arbeitsweise: Konformität in der Architektur ist lähmend und bietet wenig Spielraum für kreatives Handeln. Wir entwerfen gerne unerwartetes, schießen mit Absicht übers Ziel hinaus, um Möglichkeiten auszuloten und gehen einfach gerne abseits der ausgetretenen Pfade. Aus "nicht konform" wurde "unform" - ein Name, den wir für bedeutend griffiger halten, als eine 08-15 Buchstabenkombination.
Wir führen alle Projekte mit sämtlichen Mitarbeitenden nahtlos weiter, müssen uns dieser Tage bloß etwas mehr konzentrieren, wenn wir ans Telefon gehen!
Volles Haus! Am 23.02 haben wir gemeinsam mit rund 70 Gästen die Eröffnung einer kleinen Ausstellung mit einer Auswahl unserer eigenen Arbeiten gefeiert. Die Wände, welche sonst in Kollaboration mit der Lingener Kunsthalle bespielt werden, nutzen wir aktuell für die Präsentation von rund 20 Lieblingsprojekten der letzen 2,5 Jahre. Es war eine tolle Mischung aus Bauherren, Geschäftspartnern, Weggefährten, Künstlern, Handwerkern und natürlich unserem Team.
Ausstellungseröffnung: Gestern Abend konnten wir gemeinsam mit Kunstinteressierten, Bauherrn und Kolleg:innen die Eröffnung der Ausstellung des Künstlers "Daym" feiern. Die 15 Arbeiten umfassen eine lebhafte Mischung aus Kunst auf Leinwand mit Graffiti, - Comic, grafischen Akzenten, Fotosurrealismus sowie analoge Fotografie.
Als Einführung führte die Direktorin der Kunsthalle, Meike Behm, einen Dialog über Ideenfindung und Schaffungsprozess mit dem Künstler. Zusätzlich zu den ausgestellten Arbeiten brachte Daym gestern ein hochinteressantes Video über die Entstehung eines weiteren Werkes mit.
Es war wieder ein richtig entspannter Abend, der vor allem durch die bunte Mischung der Teilnehmenden zu interessanten Gesprächen führte. Danke an alle, die hier waren, für diese gesellige Runde - bis zum nächsten Mal!
Momentan benötigt unser Team keine zusätzliche Unterstützung.
Sollten Sie uns dennoch eine Initiativbewerbung zukommen lassen wollen, nutzen Sie den untenstehenden Link, oder schreiben direkt an Diese E-Mail-Adresse ist vor Spambots geschützt! Zur Anzeige muss JavaScript eingeschaltet sein!
Konformität in der Architektur ist lähmend und bietet wenig Spielraum für kreatives Handeln. Wir denken und handeln nonkonform, um abseits der ausgetretenen Pfade innovative Lösungen zu finden. Dabei schießen wir gerne mit Absicht über das Ziel hinaus und loten somit unerwartete gestalterische Möglichkeiten aus.
Unsere Leistungen erstrecken sich dabei über das gesamte Spektrum der Raumentwicklung: Wir übersetzen Markenidentitäten in Raumgestaltung, entwerfen im privaten, individuellen Wohnungsbau ebenso wie im städtebaulichen oder gewerblichen Rahmen und überwachen dessen Realisierung auf der Baustelle. Im Dialog mit dem Bauherrn und enger Zusammenarbeit mit den Fachplanern und ausführenden Handwerks- unternehmen vor Ort entwickeln wir in jedem Maßstab eine stets individuelle, betont zeitgenössische Architektursprache.
In der Konzeption, im Entwurf und der Ausführung verfolgen wir bis ins Detail höchste Ansprüche an eine authentische, pragmatische und ganzheitliche Architektur. Unform besitzt ein hohes Bewusstsein für ressourcenschonende, umweltverträgliche und gesunde Architektur.
Aufgrund langjähriger Erfahrung in der Bauleitung können wir sowohl die Baukosten als auch den Bauablauf Ihres Projektes transparent sowie verlässlich planen und termingerecht realisieren.
In unserem Büro in einem denkmalgeschützten Gebäude mitten in der Innenstadt von Lingen arbeiten wir mit moderner Software und 3D-Modellen, legen aber auch viel Wert auf die traditionelle Handzeichnung und fertigen in der hauseigenen Werkstatt physische Modelle an.
UNFORM Architekten Part GmbB
Elisabethstr. 17
49808 Lingen
0591 | 140 5046 0
Diese E-Mail-Adresse ist vor Spambots geschützt! Zur Anzeige muss JavaScript eingeschaltet sein!
Am 8. Juni konnten wir gemeinsam mit der Direktorin der Kunsthalle Lingen und vielen Kunstinteressierten die Ausstellung der Künstlerin und Bildhauerin Julie Kopp in unseren Räumen eröffnen. Im Rahmen eines Interviews konnten wir dabei einiges über Inspiration, den Schaffungsprozess sowie die Bedeutung der Arbeiten erfahren. Es war, wie immer, ein wunderbarer Abend in entspannter Atmosphäre. Für Interessierte, die es bislang nicht geschafft haben, steht unsere Tür weiterhin offen: Die Ausstellung läuft voraussichtlich bis um 22.11.23
MSHK ist jetzt Unform Architekten! 2020 gründeten wir das Büro als MSK und benannten es 2021 durch die Aufnahme von Tobias Hoffmann in MSHK um. Seit Mitte 2022 haben das M und das K das Büro verlassen, weshalb längst ein neuer Name anstand. "Unform" begründet sich dabei in unserer Arbeitsweise: Konformität in der Architektur ist lähmend und bietet wenig Spielraum für kreatives Handeln. Wir entwerfen gerne unerwartetes, schießen mit Absicht übers Ziel hinaus, um Möglichkeiten auszuloten und gehen einfach gerne abseits der ausgetretenen Pfade. Aus "nicht konform" wurde "unform" - ein Name, den wir für bedeutend griffiger halten, als eine 08-15 Buchstabenkombination.
Wir führen alle Projekte mit sämtlichen Mitarbeitenden nahtlos weiter, müssen uns dieser Tage bloß etwas mehr konzentrieren, wenn wir ans Telefon gehen!
Volles Haus! Am 23.02 haben wir gemeinsam mit rund 70 Gästen die Eröffnung einer kleinen Ausstellung mit einer Auswahl unserer eigenen Arbeiten gefeiert. Die Wände, welche sonst in Kollaboration mit der Lingener Kunsthalle bespielt werden, nutzen wir aktuell für die Präsentation von rund 20 Lieblingsprojekten der letzen 2,5 Jahre. Es war eine tolle Mischung aus Bauherren, Geschäftspartnern, Weggefährten, Künstlern, Handwerkern und natürlich unserem Team.
Ausstellungseröffnung: Gestern Abend konnten wir gemeinsam mit Kunstinteressierten, Bauherrn und Kolleg:innen die Eröffnung der Ausstellung des Künstlers "Daym" feiern. Die 15 Arbeiten umfassen eine lebhafte Mischung aus Kunst auf Leinwand mit Graffiti, - Comic, grafischen Akzenten, Fotosurrealismus sowie analoge Fotografie.
Als Einführung führte die Direktorin der Kunsthalle, Meike Behm, einen Dialog über Ideenfindung und Schaffungsprozess mit dem Künstler. Zusätzlich zu den ausgestellten Arbeiten brachte Daym gestern ein hochinteressantes Video über die Entstehung eines weiteren Werkes mit.
Es war wieder ein richtig entspannter Abend, der vor allem durch die bunte Mischung der Teilnehmenden zu interessanten Gesprächen führte. Danke an alle, die hier waren, für diese gesellige Runde - bis zum nächsten Mal!
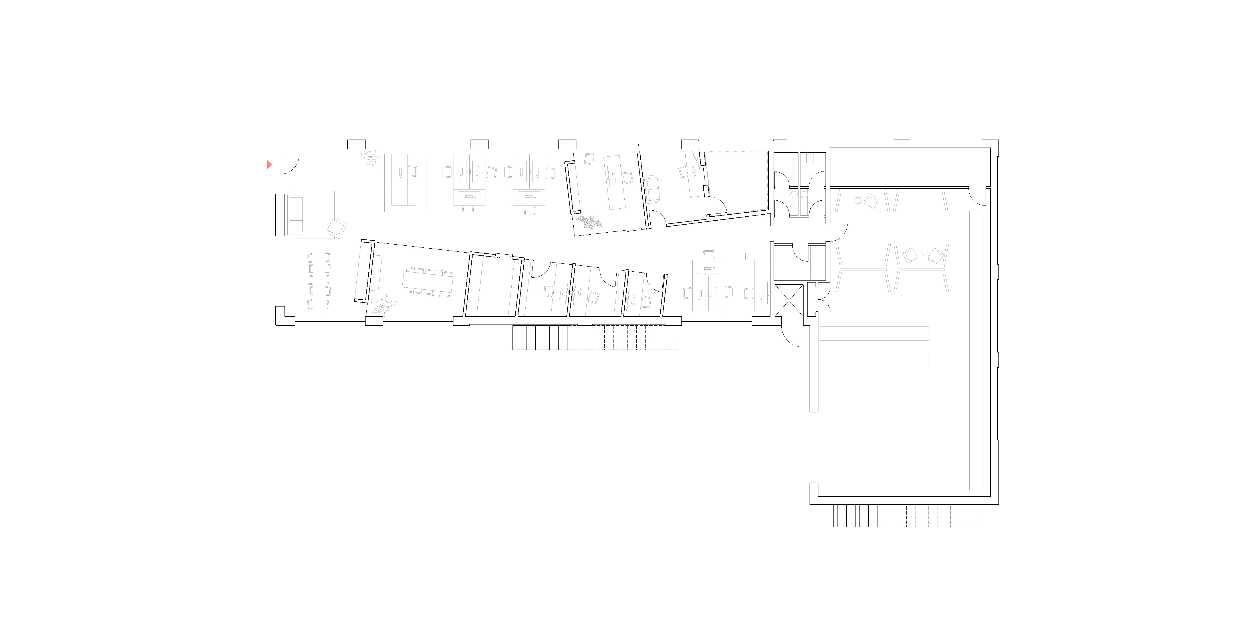
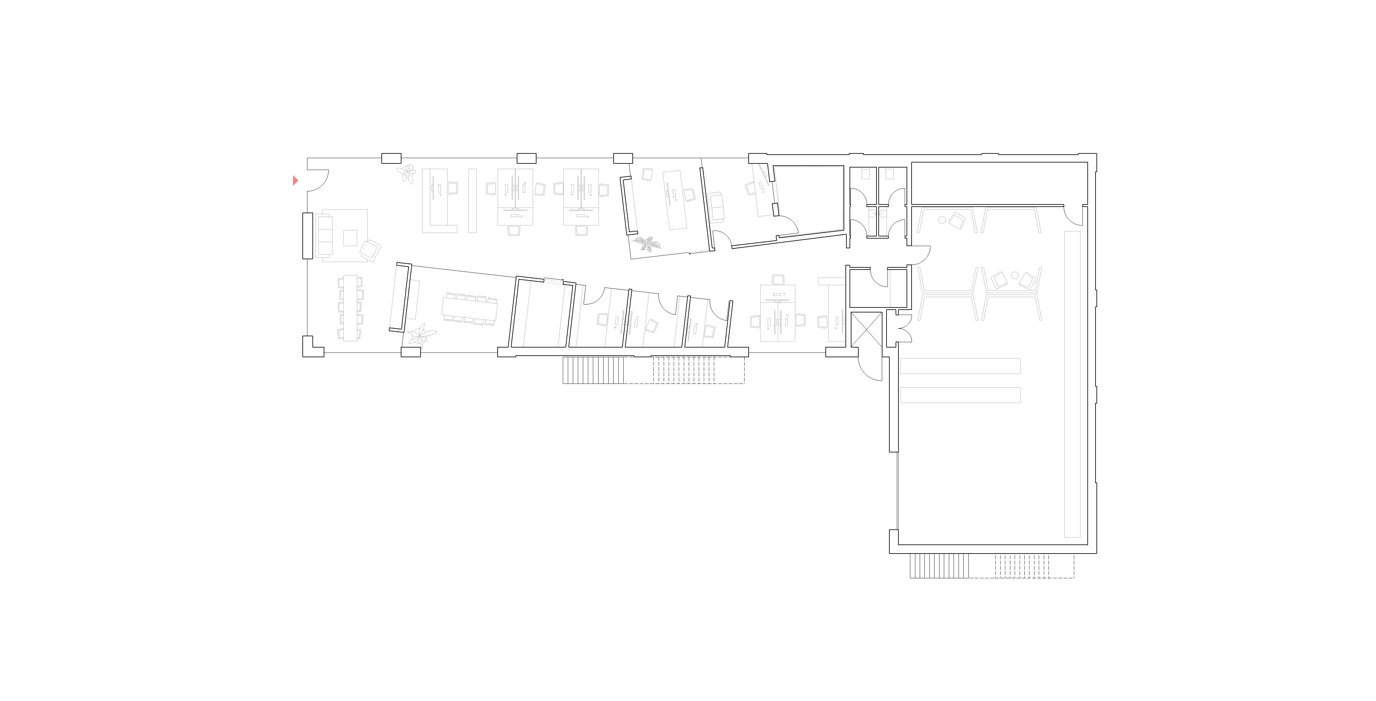
Einige aktuelle Einblicke in unsere Räumlichkeiten - alle schwer beschäftigt!
Wir bereiten gerade unsere Stellenanzeige für eine:n Bauleiter:in in Zusammenarbeit mit den Profis von Alquimia vor und sollten die Jungs dafür mit etwas Bildmaterial versorgen. Dazu bald mehr.
Und wo wir schonmal "aufgeräumt" hatten, dachten wir, Ihr wollt uns auf diesem Wege mal über die Schulter schauen.
(An den Wänden momentan die Werke des Künstlers "Daim" von denen mittlerweile schon drei verkauft werden konnten.
Bei MSHK ändert sich was! Seit Anfang Mai sind das M und das K nicht mehr Teil unseres Büros.
Die Gründe dafür sind vielschichtig, aber grob zusammengefasst: Während wir MSHK als klassisches Architekturbüro verstehen, gingen die Interessen der beiden dann doch eher in Richtung Projektentwicklung. Seit einiger Zeit waren sie dann durch eigene Projektentwicklungen Bauherr und Kollege in einer Person - das ist nicht nur irgendwie seltsam, sondern kostet auch sehr viel Energie. Mit der Beteiligung an- bzw Gründung von Handwerksunternehmen wurde in jüngster Zeit nun ein weiterer Schritt Richtung Baugewerbe unternommen, der einerseits logisch ist, andererseits aber auch noch weiter entfernt von einem transparenten, neutralen Selbstverständnis der Architekten liegt.
Es war also Zeit, mal die Köpfe zusammenzustecken und wir alle Vier sind mit dem Ergebnis sehr zufrieden.
Tobias Hoffmann und Lars Schnelting führen das Büro an Ort und Stelle mit den selben Mitarbeitern weiter. Auch die Projekte, bei denen André Meemann schon in die Bauleitung eingestiegen war, werden von ihm noch zuende geführt.
in neues Gesicht bei MSHK!
Heute ist Ilja in seine Ausbildung zum Bauzeichner gestartet.
Dabei ist er uns kein Unbekannter: Letzten Sommer absolvierte Ilja bei uns ein Praktikum und verhielt sich dabei dermaßen wie ein Fisch im Wasser, dass er fortan bei uns parallel zum Abi als Minijober arbeitete und sich kurz darauf als Auszubildender bewarb.
Wie arbeiten Architekt:innen?
Das konnten Marlena, Nick und Milena heute im Rahmen des Zukunftstag in unserem Büro erleben.
Es ging um CAD und 3D-Modelle, um den Unterschied zwischen Architekt:in, Bauzeichner:in und Innenarchitekt:in, um Bauzeitenpläne, die Wichtigkeit von Handskizzen, Nachhaltigkeit sowie Nachverdichtung und vieles mehr...da können wir den ganzen Tag von erzählen.
Die Drei waren sehr interessiert und konnten schließlich unter Anleitung unserer Schülerpraktikantin Emily bei einer kleinen Entwurfs- und Bastelaufgabe in unserer Werkstatt selbst kreativ werden - da verging die Zeit wie im Fluge...
Seit Mitte Oktober gibt es zwei weitere Gesichter bei MSHK: Bauzeichnerin Michelle Zinn unterstützt unsere Planungsabteilung in den LPH 4 & 5 mit jeder Menge Erfahrung.
Zusammen mit ihr hier eingezogen ist auch ihr Hund "Hunter". Er ist kaum 1 Jahr jung und somit noch Bürohund in Ausbildung. Er kommt von den Straßen Rumäniens und wird in Zukunft bei Honorarverhandlungen aushelfen!
Einen schönen, entspannten Abend haben wir gestern im Rahmen einer Soirée zur Ausstellungseröffnung von Eva Zimnoch verbracht. Wir sind stolz 19 Ihrer abstrakten, aber dennoch gegenständlichen Werke zeigen zu dürfen. Ein interessanter Mix aus Bauherren, Künstler:innen, Kollegen, Projektpartnern und Mitgliedern des Kunstvereins Lingen wurde von der Künstlerin und der Direktorin der Kunsthalle durch die Ausstellung geführt und konnte gleichzeitig einen guten Einblick in unsere Projekte, unsere Arbeitsweise und die Modellbau Werkstatt erhalten.
Dazu ein paar Glas Wein und gute Gespräche - was will man mehr.
Allen, die es dieses Mal nicht geschafft haben sei gesagt: Das war sicher nicht das letzte Mal!
Wir wachsen weiter: Seit Anfang September unterstützt Tatjana Hartmann unser Team! Sie ist Bauzeichnerin mit jahrelanger Erfahrung und wird die Genehmigungs- und Ausführungsplanung sowie den kaufmännischen Teil unserer Bauleitung unterstützen. Schön, dass Du hier bist - es gibt jede Menge zu tun!
Kunstwege in Lingen: Vom 17. Juli bis 15. August werden zahlreiche Schaufenster in der Innenstadt zur Galerie für lokale Künstler - unter anderem auch unseres. Die Aktion findet alle zwei Jahre statt und feiert dieses Jahr ihr 30-jähriges Jubiläum.
Während der Eröffnungsveranstaltung haben wir gemeinsam mit allen ausstellenden Künstler:innen, Vertreter:innen der Kunsthalle Lingen, Mitgliedern des Kunstvereines sowie den Betreiber:innen der Schaufenster einen Tag in der Sonne genossen. Ein gemeinsamer Rundgang führte uns zu allen 33 teilnehmenden Geschäften/ Institutionen, wo die 41 teilnehmenden Künstler:innen uns ihren Werdegang, die Arbeitsweisen und Techniken persönlich erläuterten.
In unseren Räumen zeigen wir im Rahmen der Kooperation mit der Kunsthalle Lingen weiterhin die Arbeiten von Heidemarie Albers (www.heidemarie-albers.de). Die Nachfolge steht bereits fest und wird in Kürze bekannt gegeben.
Kunst bei MSHK - In einer Kooperation mit der Kunsthalle Lingen zeigen wir ab jetzt in unseren Räumen ausgesuchte Werke der lingener Künstlerin Heidemarie Albers.
Wir haben Frau Albers und der Direktorin der Kunstahlle, Frau Behm, gerne beim Aufhängen assistiert und genießen seitdem ein erheblich farbenfroheres Arbeitsumfeld!
Da eine Messe im klassischen Sinne zur Zeit undenkbar ist, hat die Stadt Lingen eine Internetpräsenz für die eingereichten Entwürfe geschaffen. Unter www.lingen.de/wohnbaumesse können sämtliche Arbeiten zur Messe in abgespeckter Kurzform betrachtet werden.
Wir haben für unseren Beitrag ein zentral gelegenes Grundstück am Lingener Mühlenbach gewählt, welches unter dem Stichwort "Innovatives Wohnen" betrachtet werden sollte. Auf Schlagwörter hinunter gebrochen sind die Kerngedanken unseres Entwurfes: Nachverdichtung/Urbanität, Wohnangebote für alle Preisklassen, Aktivierung durch öffentliche Funktionen, autofreies Quartier/zentrales Parken, E-Mobilität und Blockheizkraftwerk (Fernwärme). Auch die Kollegen haben spannende Beiträge entwickelt, sodass sich ein Besuch der Website lohnt.
Tiefergehende Informationen zu unserem Entwurf finden Sie unter Projekte/ WBM
Anfang Januar hat der Bau eines unserer aktuellen Projekte in Lingen begonnen. Hier entstehen 6 Doppelhaushälften, von denen wir 4 im Bau begeliten. Die 110 m² großen Einheiten werden im KFW 55 - Standard mit massivem Porenbeton-Mauerwerk ohne zusätzliches erdölbasiertes WDVS errichtet. Der Baustoff ist Tragwerk und Wärmedämmung zugeich und kommt bei der Produktion ohne lange Transportwege oder hohen Energieaufwand aus.
Weitere Infos unter "Projekte / 108"
Wer hätte das gedacht! Nach nur wenigen Wochen blicken wir bereits auf eine beachtliche Auftragslage: Um die angenommenen Projekte auch in der angestrebten Qualität bedienen zu können, haben wir frühzeitig Gespräche mit möglichen Teammitgliedern geführt. Wir freuen uns, dass wir unseren Freund und ehemaligen Kollegen Tobias Hoffmann zum Jahreswechsel als weiteren Gesellschafter im Team begrüßen dürfen und werden in diesem Zuge bald ein „H“ in unseren Namen integrieren.
Die Matthias-Claudius-Schule in Lingen platzt aus allen Nähten. Das Gebäude aus den 1950er Jahren ist als zweizügige Grundschule konzipiert, arbeitet jedoch im fast dreizügigen Betrieb und muss zudem Platz für Ganztagsangebote bereitstellen. Es gibt keine Mensa, keinen Musikraum, das Lehrerzimmer sowie die Sanitären Anlagen sind nicht für diese Personenzahlen ausgelegt. Wir unterstützen das Kollegium und den Schulelternrat der MCS ehrenamtlich und erarbeiten gemeinsam eine Projektvorlage für das Schulamt der Stadt Lingen
Bereits 2018 hielt Lars Schnelting Vorträge zum Thema „Vom Traum zum Haus“ als Referent für die Architektenkammer Niedersachsen, um Bauwilligen das kleine 1x1 des Planungs- und Bauprozesses näherzubringen. Neben Entwurfsgrundlagen geht es auch um ein Basisverständnis von Bebauungsplänen, Baukosten und Baubeteiligten. Zielgruppe sind Privatpersonen mit dem Wunsch nach einem Eigenheim. Dieses Jahr startet die Vortragsreihe erneut: Allerdings als online-Meeting via Zoom. Ein konkreter Termin für den Vortrag, welcher spezifisch für das Emsland zusammengestellt wird, existiert derzeit noch nicht.
Update:
Das Seminar fand am 18.Februar statt und war ein voller Erfolg: In einem 2,5 stündigen Online-Vortrag konnten wir alle relevanten Themen anreißen. Die Teilnehmenden erstreckten sich von Nordhorn über Lingen bis Leer und haben die Veranstaltung, trotz der erheblichen Länge und Informationsdichte, aufmerksam von der Couch aus verfolgt. Wir sagen: Gerne wieder!
weitere Infos unter www.aknds.de
Auch wenn wir bereits ein paar Tage unsere Arbeit aufgenommen hatten und die ersten Entwürfe längst vom Band gehen, konnten wir heute für eine ganz offizielle Eröffnung Herrn Oberbürgermeister Dieter Krone und City-Manager Andreas Löpker bei uns begrüßen. Nach einer Führung durch das Büro konnte anhand der ersten Modelle in unserer Werkstatt bereits lebhaft über die prägnanten Projekte in der Lingener Innenstadt diskutiert werden.
Weitere Informationen:
Wir sind stolz, mit einem unserer Projekte ein Teil der Ausstellung „wachgeküsst“ der Architektenkammer Niedersachsen zu sein. Gesucht wurden „wachgeküsste“ Doppel- und Reihenhäuser alter Werksiedlungen, um auf das enorme Potential dieser alteingesessenen Quartiere aufmerksam zu machen. Da passte unser Umbau in Lingen-Heukamps Tannen wie die Faust auf´s Auge: Das Objekt war eine Zeitlang ungepflegt, stand letztendlich leer und befand sich somit buchstäblich im Dornröschenschlaf. Im Zuge des Umbaus wurden die zuvor zwei Wohneinheiten zu einem Zuhause für eine junge Familie zusammengefasst. Unter 26 Bewerbungen wurden 7 Projekte ausgesucht und zu einer Wanderausstellung zusammengefasst. Am 28.08.2020 wurde die Ausstellung in Hannover eröffnet und wird die kommenden Monate durch Niedersachsen und Bremen touren. Ort und Datum für einen Halt in Lingen wird noch bekanntgegeben.
Weitere Informationen:
*1977 | Aufgewachsen in Meppen |
1994-97 | Ausbildung zum Bauzeichner, Architekturbüro Möller in Meppen |
1997-98 | Fachoberschule „Bau-Technik“, Berufsbildende Schulen Meppen |
1998-02 | Architekturstudium, HAWK Hildesheim/Holzminden/Göttingen |
2000-01 | stud. Mitarbeiter Grundmann + Hein Architekten, Hamburg |
2003-05 | Architekt bei Pro Urban, Meppen |
2005-21 | Architekt bei WBR-Architekten, Lingen |
Jan 2021 | Partner in der MSHK Planungsgruppe |
Mitarbeit WBR: | Einkaufszentrum Lookentor Lingen Friedhofskapelle Holthausen-Biene Mutter Teresa Haus, Senioren- und Pflegeheim, Lingen Fremdfirmengebäude – RWE Power AG, Lingen 1. Platz Wettbewerb „Umbau und Erweiterung – Kath. Kiga St. Elisabeth, Lingen Verwaltungsgebäude des SKM Lingen Kindertagesstätte „Dinkel-Chamäleon“ Neuenhaus Geschäftshaus H&M, Lingen Wohnungsbauprojekt „West-End Emsauenpark“ Kindertagesstätte „Löwenzahn“ Bad Bentheim Emslandarena, Lingen Geschäfthaus „Löning Lifestylehaus“, Lingen 1. Platz Wettbewerb „Einfamilien-Wohnhaus in Altenlingen“ Einfamilienhaus - Altenlingener Sand, Lingen Kindergarten „Die Pfefferkörner“, Schüttorf Seminargebäude Kolping-Bildungshaus, Salzbergen Laborgebäude GDF Suez, Lingen Sporthalle - BBS Lingen Geschäftshaus H&M, Meppen Logistikzentrum - Bonifatius Hospital, Lingen Sporthalle Lingen-Bramsche Mehrfamilienhaus – Elisabethstraße, Lingen Mehrfamilienhaus - Am Neuen Friedhof, Lingen Mehrfamilienhaus - Akazienweg, Lingen Mehrzweckgebäude Friedenschule, Lingen Sporthalle Lünne |
*1980 | Aufgewachsen in Baccum |
1995-97 | Handwerkliche Ausbildung & Tätigkeit |
2003-10 | Geschäftsführer Wohnungsbauunternehmen, Köln |
2010-17 | Freiberuflicher Bauleiter |
2014-17 | Bauleiter SH Modulbau, Lingen |
2017-20 | Bauleiter WBR Architekten |
Juli 2020 | Gründung MSK Planungsgruppe |
Jan 2021 | Umbenennung MSHK Planungsgruppe |
*1983 | Aufgewachsen in Lingen |
2003 | Abitur, Gymnasium Johanneum (Georgianum) |
2004-07 | Architekturstudium (B.A.) Jadehochschule Oldenburg |
2007-08 | Jahrespraktikum Dorste Droste & Urban Architekten BDA, Oldenburg |
2008-10 | Architekturstudium (M.A. arch.) Münster School of Architecture |
2009-10 | Stud. Mitarbeiter Bolles+Wilson, Münster |
2010-15 | Architekt bei Bolles+Wilson, Münster |
2015-20 | Architekt bei WBR-Architekten, Lingen |
2018 | Seminarleiter der AKNDS Workshop „Vom Traum zum Haus“ |
2018-20 | Selbstständige Nebentätigkeit |
Juli 2020 | Gründung MSK Planungsgruppe |
Jan 2021 | Umbenennung MSHK Planungsgruppe |
Mitarbeit DDU: | Probenhaus des Oldenburgischen Staatstheaters |
Mitarbeit B+W: | 1. Platz städtebaulicher Wettbewerb „Lingen, Alter Hafen“ Bibliothequé Nationale du Luxembourg, Luxemburg Filiale „Möbelum“, München Cinnamon Tower, Überseequartier HH Kita St. Sebastian und Wohnen um die Sebastiankirche, Münster |
Mitarbeit WBR: | Neubau, Aufstockung, Erweiterung Filiale RIALKauf/Expert, Lingen 1.Platz städtebaulicher Wettbewerb Ortskernentwicklungskonzept Dalum 2.Platz Architekturwettbewerb Umgestaltung Bahnhof Lingen Neubau „Erlebbar“ (MFA) in der Emslandarena, Lingen 1.Platz Investorenwettbewerb Ortsteilzentrum Brögbern Neubau Hauptverwaltung Bauunternehmung Mainka, Lingen |
Selbständige Nebentätigkeit: | Entwurf von 12 Einfamilienhäusern |
*1982 | Aufgewachsen in Lingen |
2001-04 | Ausbildung Rechtsanwalts- und Notarfachangestellte |
2004-05 | Fachabitur Wirtschaft |
2005 - 2010 | Kaufmännische Angestellte |
Juli 2020 | Gründung MSK Planungsgruppe |
Jan 2021 | Umbenennung MSHK Planungsgruppe |
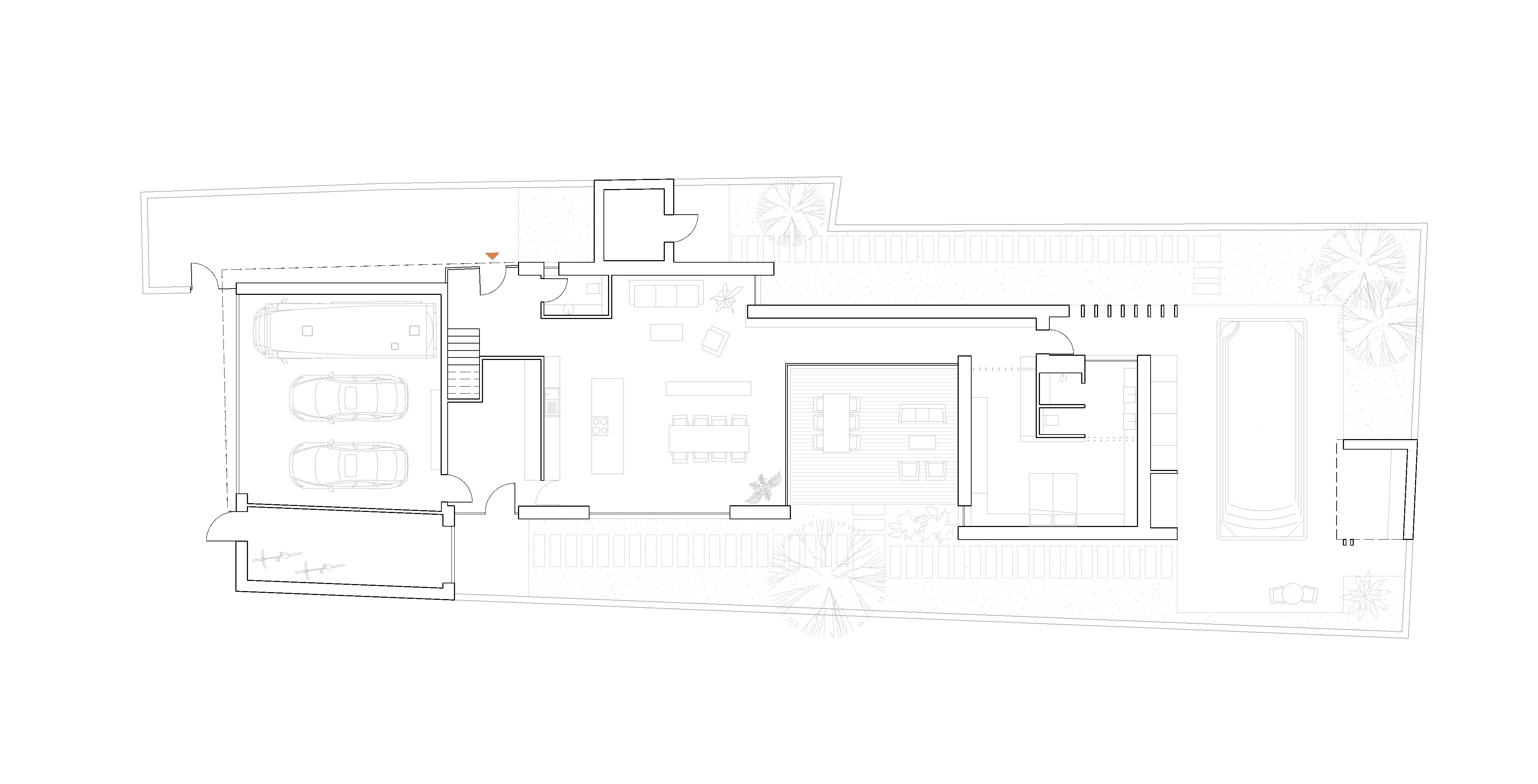
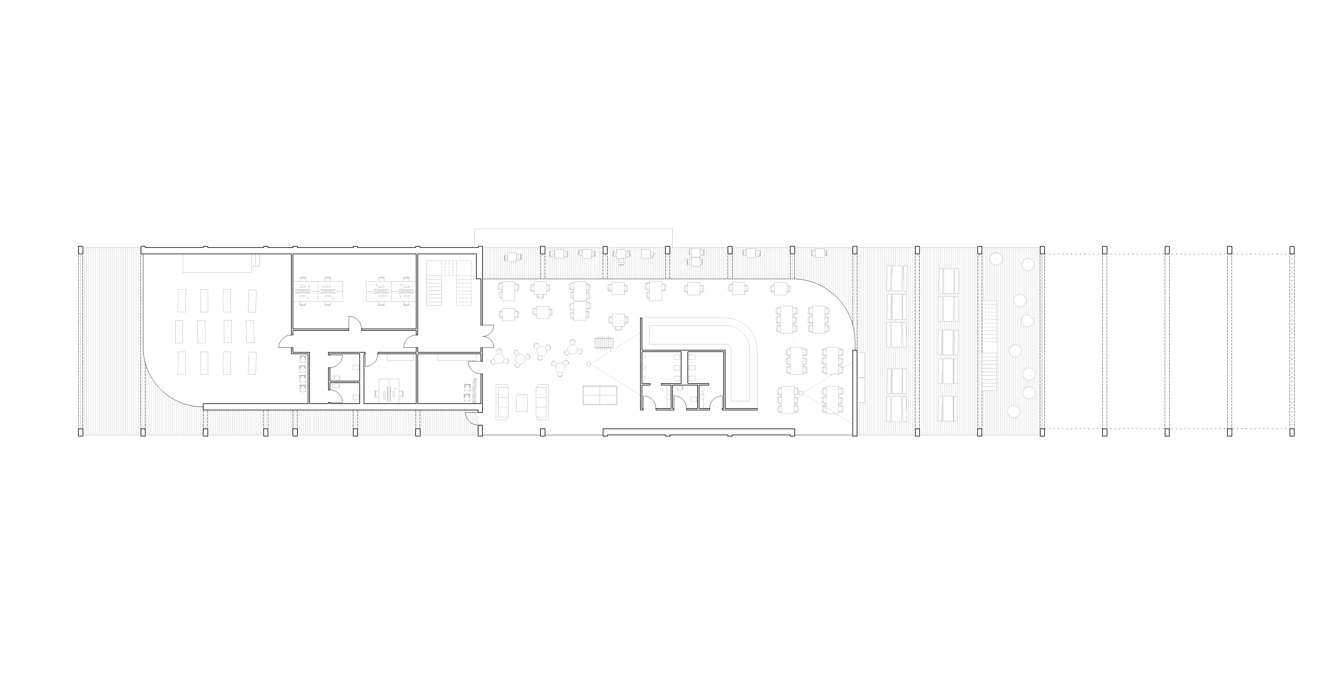
Neubau der Von und Zu Kreativagentur in Lingen
Ein offen zoniertes Bürogebäude in einem rohen Industriestil mit Ton- und Videostudios sowie einer Lounge-Bar auf der Dachfläche.
Durch die in der Fassade wiederverwendeten Riemchen konnten wir einen Schritt näher in Richtung einer nachhaltigen und zirkulären Baukultur kommen.
2024 wurde das Projekt mit dem EFS Award für die nachhaltige Fassadengestaltung ausgezeichnet, die wir zusammen mit "Wiedergewonnen" umgesetzt haben.
Neubau einer Betriebskantine für Rosenxt
Neben dem Wettbewerb um die KiTa konnten wir auch den Wettbewerb um die Kantine für uns entscheiden.
Der Speiseraum bietet über die vollflächige Glasfront einen Ausblick auf das auf dem Gelände gelegene Regenrückhaltebecken. Zudem haben die Mitarbeitenden die Möglichkeit ihre Pause direkt am Wasser auf der großzügigen Sonnenterrasse zu verbringen.
Neubau einer Betriebs-KiTa für Rosenxt
Neben dem Wettbewerb um die Kantine konnten wir auch den Wettbewerb um die KiTa für uns entscheiden.
Die Aufgabe für den Entwurf war es eine natürliche, entspannte Umgebung für die frühkindliche Bildung zu schaffen. Entstanden sind vier Gruppen inkl. Zusatzräumen wie Speise-, Kreativ-, und Sinnesraum in betont dezentem Farbspektrum.
Eine großzügige Veranda stellt die Verbindung zwischen Gruppenräumen und Garten her und gewährleistet die Nutzung des Außenraums auch bei emsländischem Wetter.
Wir durften über den Entwurf hinaus auch in der Innenraumgestaltung und Möbelplanung tätig werden.
Erweiterung der Johannesschule in Lingen
Durch den Ausbau hat die Schule mehr Lernräume sowie zusätzliche Fach- und Gemeinschaftsräume, sodass sie den Schülern eine zeitgemäße pädagogische Lehre anbieten kann.
Der neue Baukörper fügt sich mit seiner dezenten Gestaltung harmonisch in den Bestand ein. Durch gezielte Anpassungen erstrahlt auch der Innenraum in neuem Glanz.
Wettbewerb - Entwicklung eines Wohnquartiers in Wietmarschen-Lohne
In diesem Wettbewerb galt es ein Konzept für ein neues Quartier in Wietmarschen-Lohne zu entwickeln.
Die Gestaltung der Wohnhäuser spielt mit einer Kombination aus traditioneller und zeitgenössischer Architektur. Die Laubengänge, die zu den Wohnungen führen, sorgen für ein gemeinschaftliches Gefühl.
Zudem bietet das Quartier Gemeinschaftsflächen sowie Gemeinschaftsräume wie ein Café, das sich in den Ort öffnet, um auch Bürger von außen einzuladen.
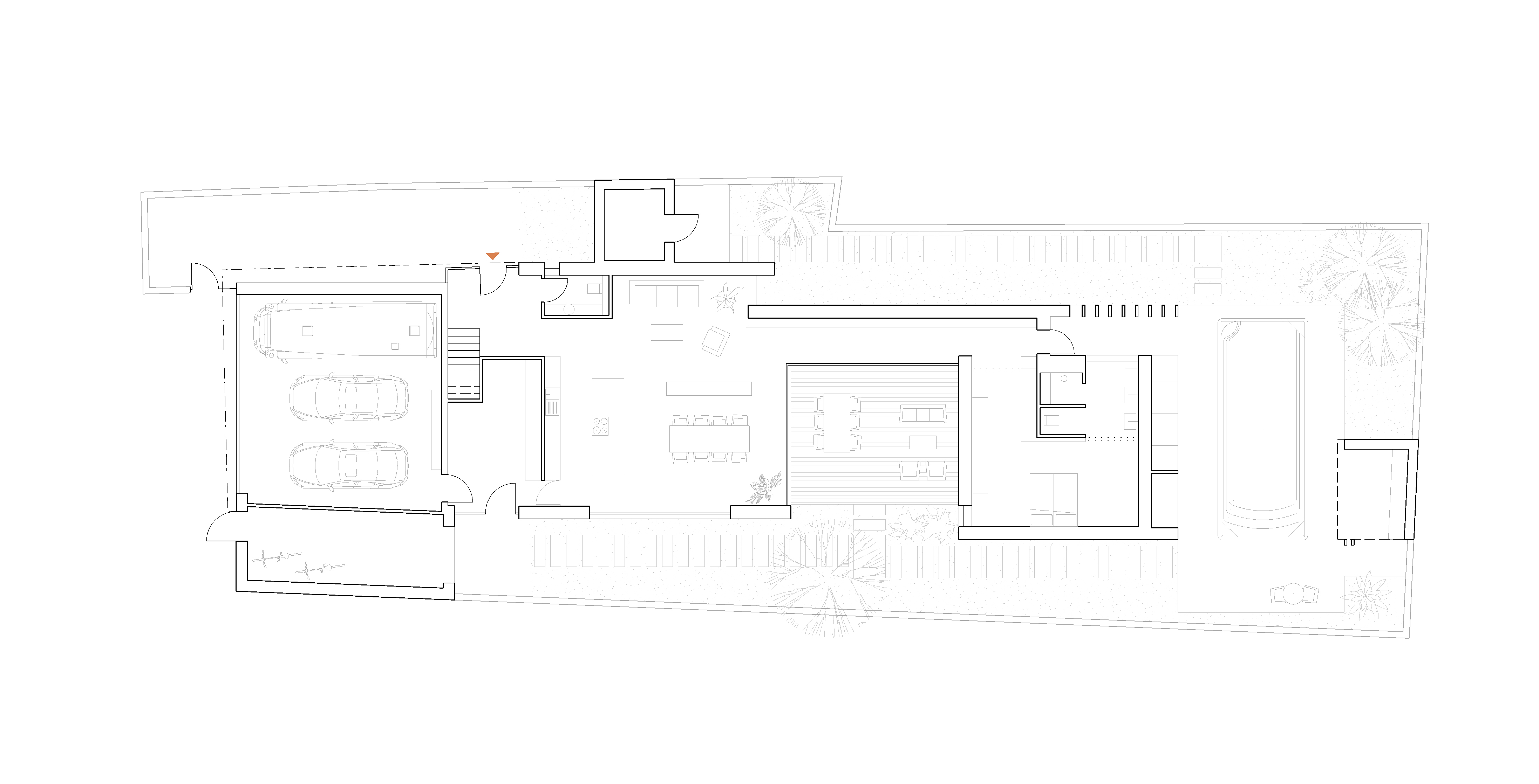
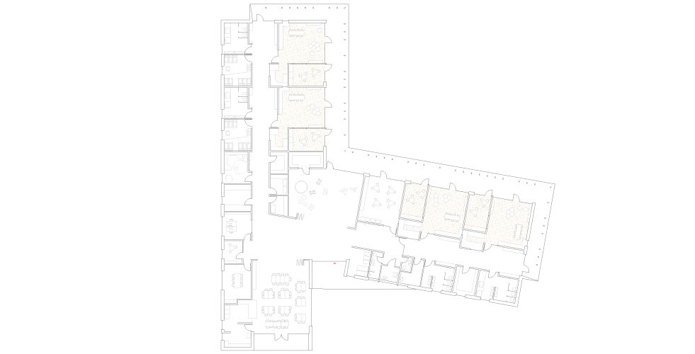
Umbau einer Arztpraxis in Lingen
Die ansässige Arztpraxis hat sich im Gebäude immer weiter ausgebreitet und bedurfte jetzt einer kompletten Reorganisation und Erweiterung - im laufenden Betrieb!
Im Zuge dessen entwickelten wir eine damals essenzielle Covid-konforme Teilbarkeit der Flächen und übernahmen zudem die Planung der Möbel und Grafiken.
Neubau eines Küchenstudios in Meppen-Nödike
Der neue Standort verbindet Logistik, Büroflächen und einen ansprechenden Showroom unter einem Dach. Während die Logistik und Fertigung im rückwärtigen Teil als schlichte Stahlhalle in den Hintergrund rückt, präsentiert sich der Bürotrakt und der daran direkt anschließende offene Showroom mit seiner natürlichen, zeitgemäßen Holzverkleidung.
Sanierung eines Verwaltungsgebäudes von Raiffeisen
Eigentlich war ein Neubau des Verwaltungsgebäudes gedacht und auch schon bauantragsreif geplant, jedoch entschied man sich im Prozess doch dazu den Bestand zu erhalten und entsprechend umzubauen.
Durch gezielte Eingriffe entstand trotzdem eine zeitgenössische Architektur, ohne dass das Gebäude seine Authentizität verliert.
Neubau eines Altenteiles. Während das offen gestaltete Erdgeschoss großzügigen Wohnraum für einen Senioren bietet, befinden sich die Räumlichkeiten einer Pflegekraft im Obergeschoss. Beide Bewohner können dabei gemeinsam oder separat den Blick in die Landschaft des traumhaft gelegenen Grundstückes genießen.
Ein Entwurf, der tragischerweise nicht mehr zur Ausführung kommt, unsere Arbeitsweise aber dennoch ganz gut illustriert.
Entwurf für den Neubau eines Verwaltungsgebäudes in Holzbauweise. Der Baukörper nutzt das leicht abfallende Gelände für eine barrierefreie Eingangstreppe, welche den zentralen Empfang erreicht. Während das Erdgeschoss die dienenden Räume, eine Kantine und die Abteilungen mit Kundenverkehr beinhaltet, befinden sich interne Abteilungen und die Geschäftsführung in den Obergeschossen.
Trotz abgeschlossener Entwurfsplanung entschied sich der Bauherr hier im Sinne der Nachhaltigkeit gegen den Neubau und für eine umfassende Sanierung und Weiternutzung der bestehenden Verwaltung, welche wir ebenfalls begleiten dürfen.
Entwurfsplanung für den Neubau eines Krematoriums in Berlin, Ludwigsfelde.
Welchen Einfluss kann Architektur Gemütslage des Menschen haben? Dies war eine zentrale Frage, welche uns im Entwurf beschäftigte. Wie kann man den Fokus von der Anreise, dem Stress und den Ablenkungen einer gleichzeitigen Welt verlagern auf die Abschiednahme von einem geliebten Angehörigen?
Unsere Antwort, welche wir als Unterstützer der Bau- und Projektplanung Exeler aus Lingen entwickeln durften, beinhaltet gewundene Wegeführungen vom Parkplatz zum Eingang, sehr reduzierte Ausblicke sowie warme, natürliche Materialien.
Sanierung der Schwimmhalle in Dalum
Eine enorm schwierige Baustelle bei der so ziemlich alles zusammenkam, was einem beim Bauen im Bestand passieren kann. Brandschutzprobleme, unzureichende Trinkwasserhygiene und allen voran eine erhebliche Schadstoffbelastung Zeitplan und Budget in Rauch aufgehen. Damals günstig gebaut - heute riesige Entsorgungskosten.
Das bestärkt uns in unserem Bestreben, bei unseren Projekten nachhaltige, recyclebare Materialien zu verwenden, damit unsere Bauten an Ihrem Lebensende keine Belastung darstellen.
Der ursprünglich reine Zweckbau bietet nun Platz für eine Liegefläche und auch für die Schwimmmeister und Gerätschaften gibt es feste Räume. Zusätzliche Aufenthaltsqualität generieren wir durch wohnliche, natürliche Materialien und stimmungsvolle Beleuchtung.
Nachverdichtung in Lingen.
In bestehenden Wohngegenden eigentlich ein schwieriges Thema - wir versuchen es einmal richtig zu machen: Der Stadtteil Heukamps Tannen wurde in den 1950er Jahren als groß angelegtes Projekt für mehr Wohnraum größtenteils als Werksiedlung errichtet (900 Wohnungen in 4 Jahren). Die zweigeschossigen Baukörper mit traufständigem Satteldach sind dabei absolut prägend für das Quartier. Sie wurden ursprünglich als 4-Parteienhaus angelegt, sind heute aber meist in Doppelhäuser umgebaut worden.
Mit unserem Entwurf wollen wir dem vorhandenen Straßenbild einen weiteren Baustein hinzufügen, der sich stark an diesem Typus orientiert - nur, dass bei uns im Sinne der Nachverdichtung 6 Wohnungen statt 2 entstehen.
Das Emslandmuseum Lingen hat zum Stadteil Heukamps Tannen einen sehr interessanten Blogbeitrag verfasst, von dem wir uns auch eines der Bilder hier geborgt haben und den wir an dieser Stelle gerne empfehlen möchten.
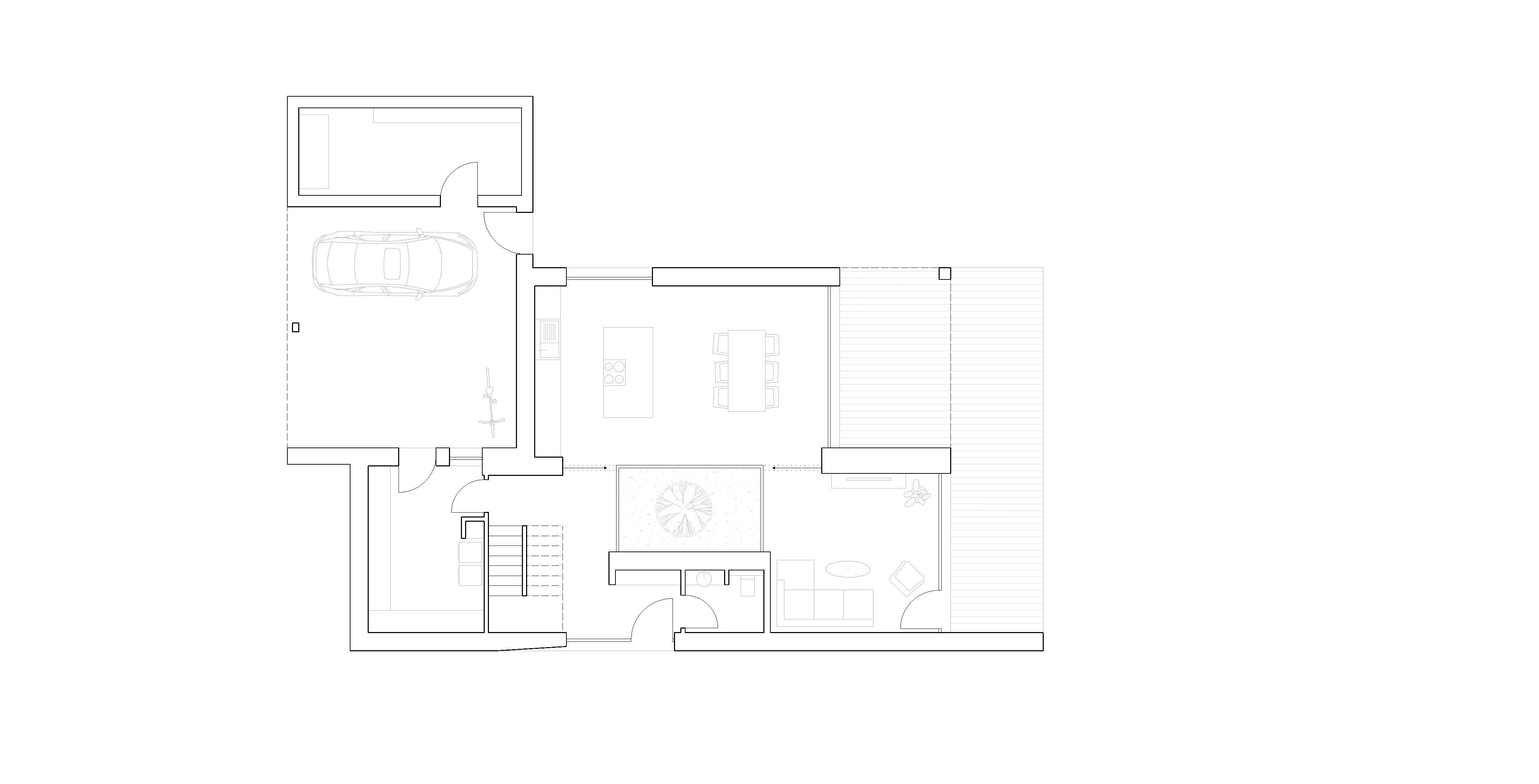
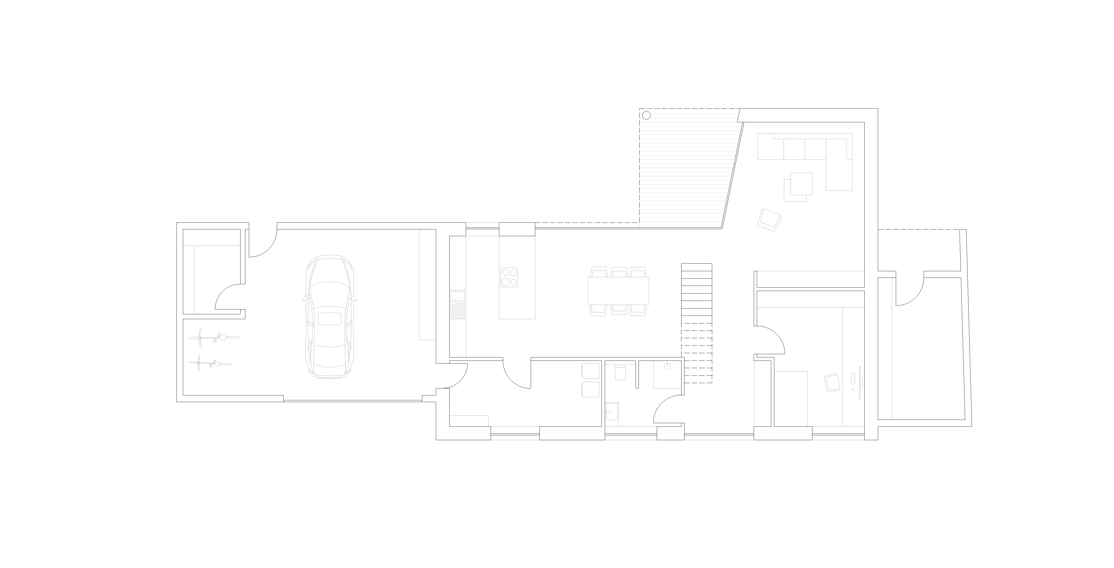
Sanierung und zweigeschossige Erweiterung eines Wohnhauses in Lingen.
Diesem Zweifamilienhaus aus den 1960er Jahren wurde neues Leben eingehaucht. Statt eines Komplettabbruchs haben sich die Bauherren für das Weiternutzen und Sanieren entschieden. Das schont nicht nur Ressourcen, sondern bewahrt auch die Seele dieses Elternhauses.
Wir entfernten diverse etwas verbastelte Anbauten aus den 1970er Jahren und erweiterten das Gebäude dann um einen modernen Anbau mit Flachdach und Dachterrasse, sodass zwei Wohneinheiten im KFW 70 EE Standard entstanden.
Dieses Konzept für eine mögliche Bebauung des Areals an der Schulstraße schlägt eine Brücke zwischen einem klassischen Neubaugebiet und einer zeitgemäßen, verdichteten Bauweise.
Während das eigene Haus mit Garten für viele Menschen einen zentralen Bestandteil ihres Lebensentwurfes darstellt, kann eine nachhaltige Stadtentwicklung die hierfür notwendigen Flächen nur begrenzt zur Verfügung stellen. Deshalb sieht der Entwurf ein stark verdichtetes Wohngebiet vor, dessen Charakter sich im Wesentlichen durch folgende Merkmale auszeichnet:
Zusammenrücken:
Reihen- und Doppelhäuser nutzen die Fläche bei ähnlicher Wohnqualität erheblich effizienter als freistehende Einfamilienhäuser, weshalb sie die prägenden Bautypen des Quartiers bilden. Dabei werden durchgehend zwei Vollgeschosse verwendet, um eine kleine Grundfläche in der Höhe zu kompensieren.
Keine Stadt für das Auto:
Die Verkehrswende und damit einhergehende Abkehr vom eigenen Automobil (oder im Emsland wenigstens vom obligatorischen Zweitwagen) findet bereits statt, sodass zukunftssichere Stadtplanung die Rolle des PKW überdenken muss. Aus diesem Grund sieht der Entwurf zentrale Parkmöglichkeiten vor und konzentriert den PKW-Verkehr somit auf eine zentrale Erschließungsstraße, während die Wege zu den Wohnhäusern autofrei sind und höchstens mal dem Be- oder Entladen dienen. Dies spart Platz und erhöht die Aufenthaltsqualität sowie Sicherheit der Wohnwege. Zudem kreiert die zentrale Straße einen kleinen Quartiersplatz, welcher zu gemeinsamen Aktivitäten, Festlichkeiten, einem Mai- oder Weihnachtsbaum einlädt und damit die Nachbarschaft stärken kann.
Ver- und Entsorgung:
Um die technische Erschließung möglichst einfach und ressourcenschonend zu gestalten, sieht das Konzept eine Nahwärmeversorgung vor, welche die Wärme für das Gebiet zentral erzeugt und an die Haushalte abgibt: In den Wohngebäuden entfallen nicht nur einige technische Geräte der Heizung, sondern auch der entsprechende Platzbedarf, sodass die Grundrisse effizienter werden.
Neben den einzelnen Wohnhäusern werden die zentralen Parkbauten mit Photovoltaik und Stromspeichern ausgestattet, sodass Elektrofahrzeuge hier direkt geladen werden können. Um den weniger attraktiven Bereich des Areals, direkt an der Bundesstraße, mit einem Mehrwert zu belegen, sieht der Entwurf vor, dass das anfallende Regenwasser der versiegelten Flächen in einer dort platzierten Senke gesammelt wird, sodass ein kleiner See entsteht.
Stadt weiterbauen:
Die zentrale Erschließungsstraße bindet direkt an das im Bau befindliche Gebiet an und führt es weiter, um die Quartiere zusammenzubinden und gegenseitige Interaktion zu fördern. Zudem sind mehrere Fuß- und Radwege vorgesehen, welche Durchwegungen oder Abkürzungen anbieten und das Gebiet inklusive Retentionsbecken zusätzlich mit den umliegenden Straßen und Siedlungen verweben.
Gemeinsam führen diese Merkmale neben den genannten Vorteilen dazu, dass die geplanten Wohneinheiten äußerst günstig hergestellt werden können. Gepaart mit einer kostengünstigen und nachhaltigen Konstruktionsweise bietet sich die Möglichkeit, in diesem Quartier eine Vielzahl von Wohnhäusern zu errichten, welche auch für Familien mit kleinerem Budget sehr gut geeignet sind.
Hier dargestellt ist Wohnraum für ca. 200 Menschen in 55 Wohneinheiten mit ca 7700 m² BGF auf einer Fläche von knapp 20.000 m².
Das Projekt ist ein reines Gedankenspiel; eine Umsetzung ist vorerst nicht geplant.
112 : Unweit des Projektes 108 an der Waldstraße in Lingen errichten wir ein Doppelhaus in monolithischer Bauweise. Während die Umgebung eine offene Bebauung vorgab, verlangte das kleinformatige, dreieckige Grundstück einen stark verdichteten Grundriss.
Es entstehen 2 ca 114 m² große Einheiten, jeweils mit offener Wohnküche und drei Schlafzimmern.
Das Gebäude wird mit monolithischem Außenmauerwerk aus Porenbetonsteinen ohne zusätzliche Dämmschicht im KFW40-Standard erstellt. Der Stein wird ohne weite Transportwege oder hohem Energieaufwand aus natürlichen Rohstoffen produziert und kann nach Abbruch wiederverwertet werden kann. Die Fassade wird abgesehen von wenigen Teilflächen mit Klinkerriemchen beklebt. Die Verblender wurden bereits im Werk in nur ca. 2 cm Stärke gefertigt und benötigen somit erheblich weniger Material und Enerige zur Herstellung. Ohne zusätzlichen Konstruktionsaufwand erlaubt dieses Vorgehen zudem einen erheblichen Gestaltungsspielraum in der Fassade.
UPDATE: Der Baustart ist im August`21 erfolgt
(Credit: Die Grundlage für die durch uns verfeinerten Perspektiven entstand in Zusammenarbeit mit der Volksbank Haselünne)
ARL : Zwischen der Alten Rheinerstraße und der Lindenstraße in Lingen entwickeln wir eine Wohnbebauung mit rund 37 Einheiten. Während die Baukörper an der Linden- bzw. alten Rheinerstraße jeweils für sich stehen und in die umgebende Bebauung eingepasst werden, erstreckt sich ein Parkdeck im Souterrain über die gesamte Grundstückstiefe.
Die Baugenehmigung wird im Sommer 2023 erwartet, im selben Jahr soll mit dem Bau begonnen werden.
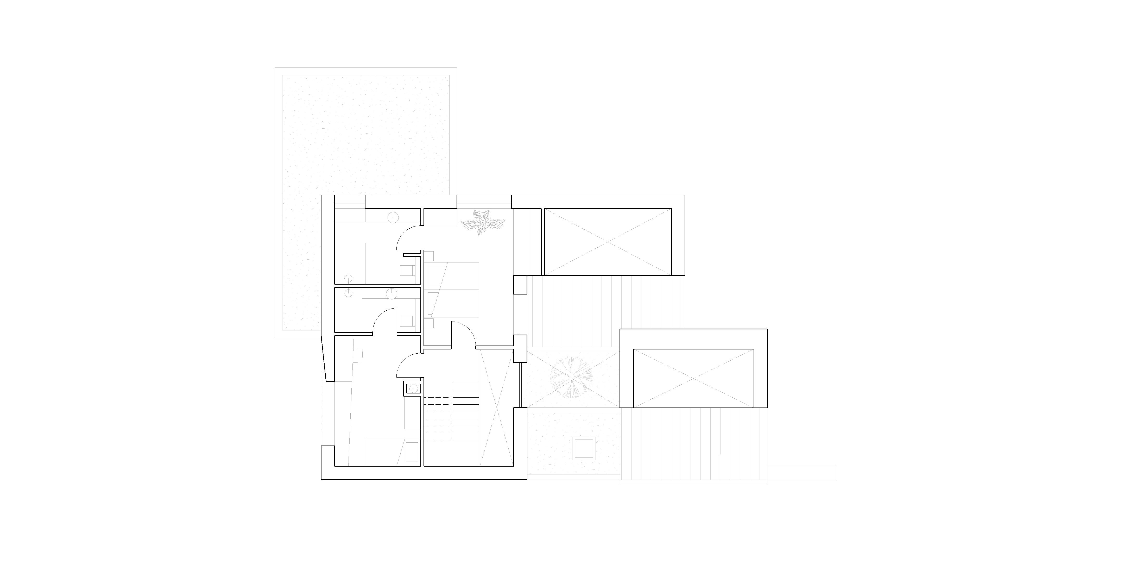
FT1 : Das charaktervolle Einfamilienhaus aus den 1990er-Jahren soll um eine ganze Reihe von zusätzlichen Funktionen ergänzt werden, um die Abläufe im Haus zu optimieren, aber vor allem der Familie an diversen Stellen mehr Raum zur Verfügung zu stellen.
Statt die Architektursprache des Bestandsgebäudes nachzuahmen, setzen wir auf Kontraste: Die graue Holzvertäfelung über dem Haupteingang wird zum Anlass genommen, einen sehr schlichten Anbau zu entwickeln, welcher seine Ausdrucksstärke durch eine ausgesprochen minimalistische Detailausbildung erhält.
Auch bei diesem Projekt setzen wir auf die Holz-Tafelbauweise mit Massivholzdecken. Da die Familie das Objekt auch während der Bauphase bewohnt, muss der Umbau möglichst kurz und stressfrei erfolgen: Der gesamte Anbau wird vorgefertigt und innerhalb kürzester Zeit aufgestellt.
Hier zu sehen ist eine Fotomontage, welche digital per Hand gezeichnet wurde. Ein Hilfsmittel, welches fester Bestandteil unserer Arbeitsweise ist.
UPDATE: Der Baustart ist erfolgt. Entgegen der ursprünglichen Planung wird die Fassade mit einem Besenstrich-Putz versehen.
W22 : An der Straßenkreuzung Waldstraße/Wilhelmstraße in Lingen dürfen wir ein prägnantes Eckgrundstück mit einer neuen Bebauung versehen. Geplant ist ein Wohn- und Geschäftshaus, welches die exponierte Lage an der Kreuzung und gegenüber des Krankenhausparks nutzt, um einen städtebaulich signifikanten Hochpunkt zu setzten.
Hier zeigen wir unsere Konzeptstudie für dieses Bauvorhaben. Die Kubatur befindet sich zwar noch in der Abstimmungsphase mit der Stadtverwaltung, sie illustriert jedoch sehr gut unsere Herangehensweise an das Projekt.
Für eine Projektentwicklung in Nordhorn entstand dieses Konzept für eine nachverdichtende Hausgruppe im Blockinneren.
Neben einem Lückenschluss im Norden des Grundstückes wurde für den Innenbereich eine Gruppe aus drei dreigeschossigen Baukörpern entwickelt, die der erste Baustein einer größeren nachverdichtenden Stadtentwicklung des gesamten Quartieres darstellen sollten.
Die Treppenhäuser der Baukörper erreichen eine gemeinsame Tiefgarage, während sie oberirdisch durch informelle Fußwege erschlossen werden. Neben Haltemöglichkeiten für Lieferanten verzichtet die Anlage auf übererdige Stellplätze, sodass die Außenbereiche stattdessen durch die Gärten der Erdgeschosswohnungen sowie gemeinschaftliche Sitz- und Spielmöglichkeiten für Jung und Alt gekennzeichnet sind.
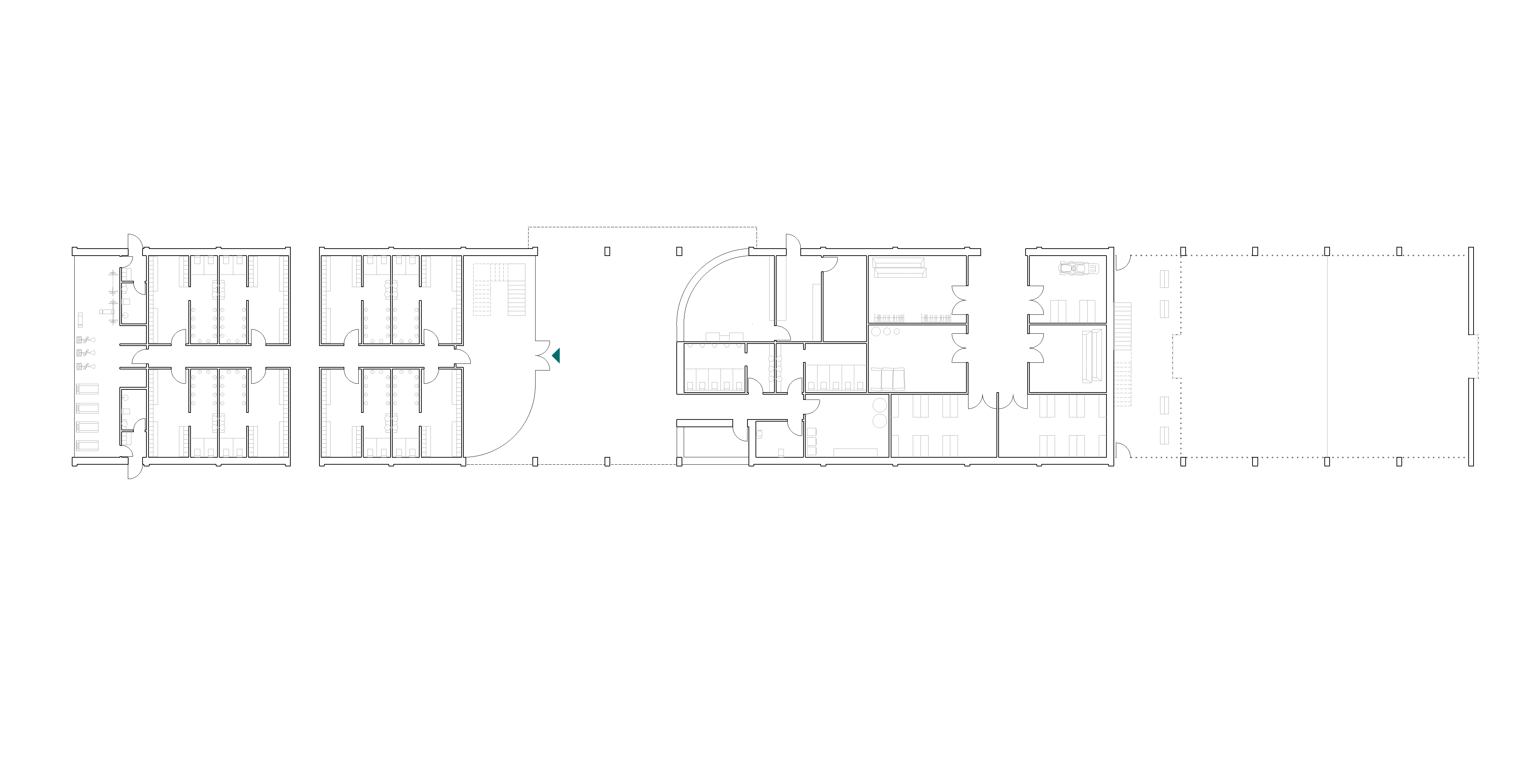
108 : An der Waldstraße in Lingen wurde eine Anlage von 6 Doppelhaushälften geplant, von denen wir 4 DHH selbst im Bau begleiten.
Die verputzten Fassaden der ca 110 m² großen Einheiten werden mit monolithischem Außenmauerwerk aus Porenbetonsteinen ohne zusätzliche Dämmschicht im KFW55-Standard erstellt. Statt einem Erdöl-basierten WDVS kommt mit Porenbeton ein Baustoff zum Einsatz, welcher ohne weite Transportwege oder hohem Energieaufwand aus natürlichen Rohstoffen produziert wird und nach Abbruch wiederverwertet werden kann.
UPDATE: Auf Wunsch des Bauherren wurden diverse Teilflächen mit Klinkerriemchen beklebt. Die Verblender wurden bereits im Werk in nur ca. 2 cm Stärke gefertigt: Sie benötigen somit erheblich weniger Materiail und Enerige zur Herstellung, ergeben jedoch eine ebenso widerstandsfähige Oberfläche.
WBM : Die Grundstücks- und Erschließungsgesellschaft Lingen bat im Herbst 2020 um Entwurfskonzepte für eine bislang ungenutzte Fläche von ca. 1,7 Hektar entlang des Mühlenbaches in Lingen. Wir beteiligten uns mit einem Vorschlag nach dem „Low Rise – High Density“-Prinzip, um aufzuzeigen, wie eine Nachverdichtung von zentrumsnahen Flächen in unserer Kleinstadt nach unserem Verständnis aussehen sollte.
Nachfolgend die Stichpunkte des Erläuterungsberichtes:
Verdichtung im Zentrum entlastet Straßen: Zum einen gibt es weniger Pendelverkehr, zum anderen ist die Radnutzung attraktiver, was den in Ortsteilen üblichen Zweitwagen obsolet macht. Zudem wird weniger Landschaftsfläche verbraucht.
Vielseitige Wohnmöglichkeiten bringen mehr soziale Gerechtigkeit: Eine Kombination von gehobenem Wohnungsbau, individuellem Wohnen und einfachem Geschosswohnungsbau bietet Menschen mit unterschiedlichen Wünschen und Möglichkeiten am selben Ort einen Platz zum Leben. Aus sozialer Durchmischung ergibt sich ein integratives Miteinander und fördert ein pluralistisches Weltbild.
Teilhabe durch Nicht-Anwohner wird erreicht, indem öffentliche Spielmöglichkeiten (für Jung und Alt) sowie Plätze angelegt werden, Radwege und Abkürzungen durch das Quartier führen und es keine Sackgassen gibt. Dies belebt das Quartier ganztägig und führt zu mehr sozialer Kontrolle, sodass öffentliche Flächen nicht verwahrlosen.
Das Plankonzept setzt diese Punkte um:
Im Bereich der Brücke über den Mühlenbach wird ein öffentlicher Platz angelegt. Dies verhindert, dass das Quartier nur als ein weiteres reines Wohngebiet verstanden wird. Hier wird der Mühlenbach ein Stück verbreitert, um die Aufenthaltsqualität zu verbessern. Dieser Platz kann durch Nutzungen wie einen Kiosk oder kleinere Gastroangebote belebt werden (Einzugsgebiet von zwei Schulzentren). Zudem hat er das Potential ein Zentrum/Treffpunkt für den Stadtteil zu werden, sodass auch Gemeinschaftsräume für Vereins- oder Kursangebote realistisch sind. Um den Platz befindet sich gehobener Wohnungsbau mit Tief-garage.
Vom Platz wird ein öffentlicher Weg entlang des Mühlenbachs angelegt, um diesen schönsten Teil des Grundstückes allen Bewohnern gleichermaßen zugänglich zu machen. Dieser führt zu einem kleinen Spielplatz, sowie einer neuen Brücke, welche das Quartier mit der umliegenden Siedlung verknüpft.
Im westlichen und nördlichen Bereich des Areals sind einfache Wohnbauten mit betont günstiger Ausstattung vorgesehen. Sie bringen die städtebauliche Masse an die Ränder des Quartiers (Schutz vor Verkehrslärm) und verbreitern das soziale Spektrum möglicher Bewohner.
Im Norden des Grundstückes, aber vor allem entlang des Mühlenbaches befinden sich stark verdichtete Reihenhaustypen. Sie werden jeweils durch einen Wohnweg erschlossen und besitzen einen eigenen Garten sowie eine Dachterrasse.
Die Zentrale Erschließung erfolgt durch eine neu angelegte Straße, welche die Nöldekestraße mit dem Bahnübergang verbindet, um hier die Möglichkeit vorzubereiten, an eine potentielle Bebauung westlich der Gleise anknüpfen zu können. Dabei sollte Straße als verkehrsberuhigte „shared-space“ - Fläche ausgeführt werden, bei der die Nutzung abseits des PKW-Verkehrs im Vordergrund steht.
Das Quartier ist weitgehend „autofrei“ geplant. Dabei werden die PKW in einem zentralen Versorgungsgebäude untergebracht: Ein Parkdeck auf zwei Ebenen mit darüberliegender „Pergola“ zur Aufnahme von Solarpaneelen. Hier befinden sich Ladestationen für E-Autos, aber auch ein zentrales Blockheizkraftwerk (Biogas), welches das gesamte Areal mit Fernwärme versorgt, sodass die Wohneinheiten mühelos höchste Energiestandards erreichen.
Mit der hier vorgeschlagenen Bebauung werden rund 110 neue Wohneinheiten auf ca 1,7 Hektar geschaffen, während in einem eher gewöhnlichen Neubaugebiet wie z.B. Lingen-Brockhausen für dieselbe Anzahl Wohneinheiten rund 8,7 Hektar Grünland in einem abgelegenen Außenbezirk verbraucht werden.
© 2021 UNFORM Architekten Part GmbB. Alle Rechte vorbehalten.